A modern építészetben a Porotherm födémek egyre nagyobb teret hódítanak, különösen az Archicad szoftverrel dolgozó tervezők körében. A Porotherm födémek kiváló statikai tulajdonságokkal rendelkeznek, és számos előnyt kínálnak a hagyományos födémrendszerekkel szemben. Azonban a különböző építészeti elemek, mint például a falak, gerendák és oszlopok csomópontjainak helyes kialakítása kulcsfontosságú a szerkezet stabilitása és tartóssága szempontjából.
A következőkben részletesen megvizsgáljuk a Porotherm födémmel kapcsolatos leggyakoribb csomóponti megoldásokat, különös tekintettel az Archicadben történő modellezésükre.
Fal-fal és gerenda-gerenda csatlakozások
A falak és gerendák csatlakozásainak helyes kialakítása alapvető fontosságú az épület statikai integritása szempontjából. Fal-fal metsződések esetén a falaknak nem csak ütközniük kell, hanem a referenciavonalaiknak is metszeniük kell egymást. Ha két vagy több fal találkozik (a referenciavonalak metszik egymást), az elemszintű csomópontok vezérléséhez használja a Csatlakozási sorrend funkciót.
A gerenda-gerenda metsződések maximális rugalmassága érdekében ügyeljen arra, hogy a gerendák referenciavonalai metsszék egymást. Ilyenkor a gerendáknak tulajdonképpen nem szükséges ütközniük. A gerendák automatikusan egymásba nyúlnak a referenciavonalaik mentén. A gerendák metszése egyszerű ütköztetéssel is megvalósítható, ilyenkor nem szükséges, hogy a referenciavonalak metsszék egymást. Ebben az esetben azonban a gerendák megállítják egymást, azaz nem nyúlnak automatikusan egymásba a referenciavonalaik mentén.
Ha 3 vagy több fal vagy gerenda találkozik egy csomópontban, a csomópont több kétirányú csatlakozásból álló csoportként viselkedik. A kapcsolatok rendjét a csatlakozási sorrend határozza meg.

Oszlopok és réteges falak csatlakozása
Ha egy ún. burkolt oszlopot helyez el, amelynek közös része van egy réteges fallal, az oszlop áttöri a réteges fal teherhordó rétegeit, függetlenül a rétegek prioritásától. 3D-ben a fal burkolórétegei az oszlop burkolatához lesznek hozzáadva.

Nyílászárók és födémek csatlakozása
Amikor a falban elhelyezett nyílászáró (ajtó vagy ablak) egy síkban van a födém tetejével, a födém burkolatának rétege folytatódik a falon, a réteghez rendelt összemetsződési prioritásoktól függetlenül (egészen a födém teherhordó rétegéig). Balra: Az ablak és az ajtó egy síkban van a födém tetejével. Ebből kifolyólag a födém burkolatának rétegei nem a prioritások szerint csatlakoznak a falrétegekhez.

Héjszerkezetek, tetők és alakzatok kezelése
Ha a metszet héjszerkezetet, tetőt vagy alakzatot tartalmaz, a megfelelő metszés érdekében használja a Tervezés > Csatlakoztatás > Elemek egyesítése parancssort. Ha egy héjszerkezet vagy tető a vágóelem szerepét tölti be (Tervezés > Csatlakoztatás > Elemek vágása tetővel/héjszerkezettel), össze lesz fűzve a levágott elemmel.
Vonalkiküszöbölési szabályok modellnézetben
Ha két (azonos vagy eltérő szerkezeti elem típusú) elem találkozik a modellnézetben (Metszet, Homlokzat, 3D dokumentum), a következő vonalkiküszöbölési szabályok érvényesek. Ezek a szabályok nem érvényesek az alaprajzon, ott ugyanis minden vonal megjelenik. A vonalak láthatóságának beállításához használja a Megjelenítési sorrend lehetőséget.
Ha valamelyik vagy semelyik elem sem használ építőanyagot (pl. két tárgy), akkor a metszeti kitöltésekre a fenti logika érvényes (az építőanyagoktól eltérően). Ha meg szeretné tartani a válaszvonalat, módosítsa az egyik elemhez tartozó Fólia metszéscsoport számot.

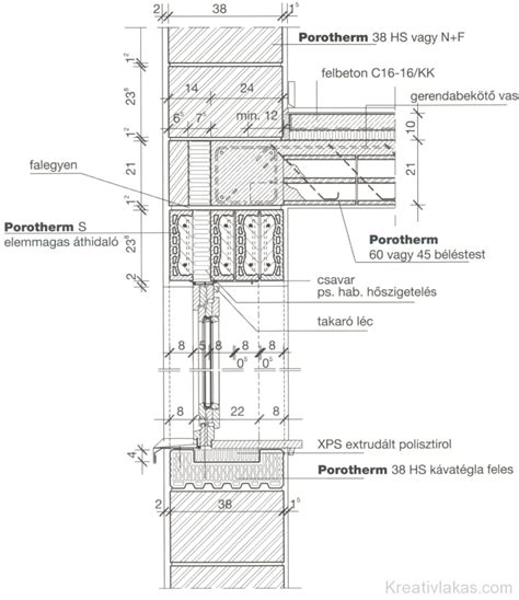
Porotherm tégla és vasbeton pillérek
Egy tömör téglafalas épületnél, ha azt vasbeton pillérekkel kell megerősíteni, a fal teherhordó szerepe csökken. Fontos megemlíteni, hogy a vasbeton pillérek megfelelő hővédelméről is gondoskodni kell, mivel a 30 cm vastag Porotherm tégla nem egyenlő hőtechnikailag 30 cm vastag vasbeton pillérrel.
Gyakori problémák és megoldások
Néha előfordulhatnak olyan helyzetek, mint például egy kettős garázs kialakítása két oszloppal, ami nem ideális megoldás lehet. Bár a terv részletesnek tűnhet, fontos az alapvető csomópontok, mint például a kiváltók vagy koszorúk kiegészítő hőszigetelésének ellenőrzése. A kerámia béléstestek pontos megjelenítése mellett az alapvető csomópontok megoldatlansága ellentmondásos lehet.
A belső terek sötétsége és a zegzugos alaprajzok is problémát jelenthetnek. Bemetszések alkalmazása az alaprajzon és az épülettömegben sem mindig oldja meg ezeket a kérdéseket.

Összefoglalva, a Porotherm födémek használata Archicadben számos előnnyel jár, de a részletekre, különösen a csomópontok helyes kialakítására való odafigyelés elengedhetetlen a stabil és tartós épület létrehozásához.